Professional CAD Solution for Industrial Needs

CAD Solution
for Metal Processing
and Industrial Machinery

Designed for professionals: view and convert most popular CAD formats, edit 2D drawings and generate G-code for CNC machines. Simple licensing, flexible payment – lifetime or subscription.

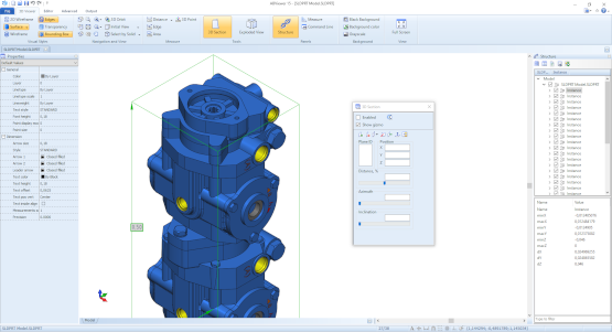
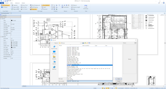
ABViewer interface

Why ABViewer Professional?

Perfect for manufacturing companies

Made for metalworking, CNC programming, and machine building – on the shop floor or in the office.

1

Easy to buy and use

Quick installation, familiar interface, no paperwork. Runs on Windows and Linux with Wine.

2

Free support

We answer all your questions during testing and after purchase. No paid plans or ticket system.

3
Established in2000
Our own CAD kernel - tailored specifically for metalworking and manufacturing professionals
1000+clients from Europe and USA

Supported Features

View and analyze

View 2D drawings and 3D models, measure parameters, and create section views.

Perfect for quality control, production planning, and quoting jobs on the shop floor.

Edit drawings

Create 2D drawings from scratch and edit CAD files. Add comments and markups to the file.

Useful for making quick changes, documenting revisions, or approval process.

Convert files

Save files to popular CAD formats and share them with coworkers, clients, or suppliers.

PDF to DWG is supported by ABViewer Enterprise only

Generate G-Code

Easily generate .nc files for CNC machines from 2D drawings – no need for extra software.

3D model visualisation in ABViewer 2D editing in ABViewer File conversion in ABViewer G-code generation in ABViewer

Need more features? ABViewer Enterprise supports PDF to DWG, batch print, batch conversion, file comparison

Supported Formats

Import
Export

CAD FORMATS: DWG, DXF, DWT, DWF, DXT

VECTOR FORMATS: WMF, EMF, SVG, SVGZ, EPS, PS, PLT, HPGL and others

3D FORMATS: 3DS, SAT, SAB, STL, IGES, STEP, IPT, FSAT, SMT, OBJ, IFC, X_T, X_B, SLDPRT, SLDASM, BREP, NMF and others

COMPLEX FORMATS: CGM, PDF

RASTER FORMATS: PNG, BMP, JPG, JPEG, TIF, TIFF and others

ARCHIVES: ZIP, TAR, GZ, CAB

VECTOR FORMATS: PDF, DWF, DXF, SWF, SVG, CGM, DXT, PLT

3D FORMATS: STL, STEP, OBJ, OBJF, NMF, LMTS, SAT, SAB

G-CODE: NC, NGC, GCODE, NCP

RASTER FORMATS: BMP, GIF, JPG, PNG, TIF, TIFF, WMF, EMF, SWF

All 3D models can be converted to STL, OBJ, DWG, DXF, and supported 2D formats. Parametric 3D models can also be converted to STEP, SAT, SAB.

What our clients say

I am very pleased with the viewer. It opens files quickly and you can print them just with several clicks. All in all, the program is very user-friendly.

Customer icon

Beckers Regeltechnik GmbH

Germany

The program has an excellent price-performance ratio and is easy to use even for people who don't create CAD projects usually.

Customer icon

TechnoGrav

Germany

We are very pleased with this software. Everything works perfect and we haven’t had any problems.


Customer icon

Arsenal Railway Certification GmbH

Austria

With the feature „Measuring 3D Models“ we can replace third party CAD applications and save money. Excellent product, highly recommended for users that don't need highly priced CAD applications.

Customer icon

Multinorm d.o.o.

Croatia

For my purposes the program is very user-friendly and I manage to do everything I need.

Customer icon

TTG Maschinenbau GmbH

Germany

Buy ABViewer Professional

Three-month subscription
User License Know more
A user license can be used only by a license holder on one or two computers, but not at the same time. The number of purchased licenses must be equal to the number of people who use ABViewer.

$30 / three months

5% off two or more licenses

Buy
Show floating license
Floating License (for a TCP/IP network) Know more
Floating licenses allow using ABViewer on several PCs that are connected to a TCP/IP network. The number of people using ABViewer at the same time is restricted by the number of purchased floating licenses.

$61 / three months

5% off two or more licenses

Buy
One-year subscription
User License Know more
A user license can be used only by a license holder on one or two computers, but not at the same time. The number of purchased licenses must be equal to the number of people who use ABViewer.

$77 / year

5% off two or more licenses

Buy
Show floating license
Floating License (for a TCP/IP network) Know more
Floating licenses allow using ABViewer on several PCs that are connected to a TCP/IP network. The number of people using ABViewer at the same time is restricted by the number of purchased floating licenses.

$154 / year

5% off two or more licenses

Buy
Lifetime license
User License Know more
A user license can be used only by a license holder on one or two computers, but not at the same time. The number of purchased licenses must be equal to the number of people who use ABViewer.

$189 for life

5% off two or more licenses

Buy
Show floating license
Floating License (for a TCP/IP network) Know more
Floating licenses allow using ABViewer on several PCs that are connected to a TCP/IP network. The number of people using ABViewer at the same time is restricted by the number of purchased floating licenses.

$383 for life

5% off two or more licenses

Buy
Frequently Asked Questions
  • Visa, MasterCard, American Express, JCB, Discover, Diners Club, and Maestro credit cards
  • Wire transfer
  • Check
  • PayPal
  • Google Pay
  • Purchase Order

With a three-month or one-year subscription, you get a time-limited registration key. While your subscription is active, you benefit from all updates (e.g., 15.0 → 15.2) and upgrades (e.g., 15 → 16).

With a lifetime license, you get a time-unlimited registration key for the exact version available at the time of purchase. Upgrades to a new major version are optional ana paid. For further details, please refer to https://cadsofttools.com/products/abviewer/lifetime-license-upgrade/.

Yes, your subscription will be automatically renewed unless you cancel it. For your convenience, we send a reminder before the renewal takes place.

To know when your subscription expires, run ABViewer, click on the blue question mark icon located in the upper right corner and select About.

You can change this information in your PayPro Global account.

If you no longer wish to renew your subscription, you can cancel it in your PayPro Global account or by contacting us at info@cadsofttools.com. Please note that cancelling the subscription will only prevent future renewal. It does not refund a renewal that already took place.

No. You can activate your license without the internet connection.

Floating licenses allow using ABViewer on several PCs that are connected to a TCP/IP network. The licenses are managed by the software CST Floating License Server that is free and is installed in case floating licenses are purchased.

The number of computers using ABViewer at the same time is restricted by the number of purchased floating licenses. When the software is started, it connects to CST Floating License Server and gets a license. The number of the available licenses at the server is decreased. After the program is closed, the license is returned to CST Floating License Server, and it becomes available for other computers.

CST Floating License Server supports the following Microsoft Windows OSs:

  • Windows Vista/7/8/10/11
  • Windows Server 2008/2008 R2/2012/2012 R2/2016/2019/2022/2025

If computers in your company are connected to a single TCP/IP net and ABViewer will be used on several computers at different time, ordering a floating license will allow you saving money.

ABViewer Licenses Types Comparison
User License Floating License
Licenses can be installed on separate computers as well as on PCs connected into one network. Computers must be connected into a TCP/IP net. Floating licenses are especially convenient for terminal systems.
The license can be installed on a restricted number of computers. The license can be installed on any number of computers within one TCP/IP net, the number of ABViewer copies running at the same time is restricted.
Each license can be used by a single person - the license owner. The license can be used by all the users who have access to the TCP/IP net and floating licenses.

Ready to get started?

Try ABViewer today with its free 30-day trial version. The software supports a wide range of 2D and 3D CAD formats and has all the main features you need to work with drawings and models. It comes with flexible licensing and free client support.

Download the free version of ABViewer